項目概述
上海ZRXCL科技有限公司位于上海松江區小昆山開放區。
項目為A、B兩棟廠房辦公室,兩棟樓的結構格局類似,空間的功能劃分為車間廠房,辦公空間及實驗室空間。

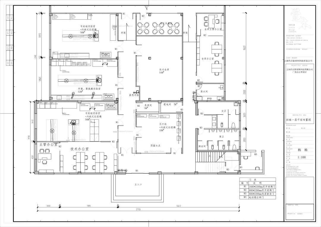
A棟主要以實驗室、檢測室為主樣品間留樣間等技術空間,前區廠房為技術空間,后區廠房主要為生產車間。

A棟平面布置圖
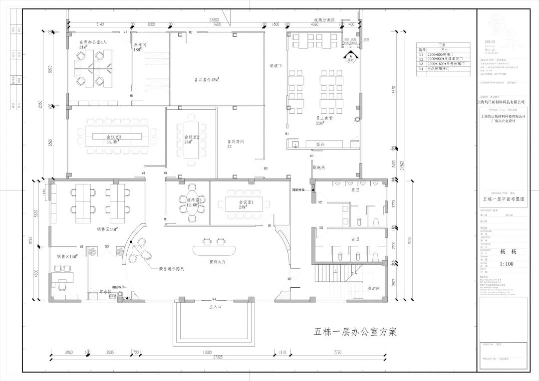
B棟的一層前區主要以前臺接待、會議室接待、銷售辦公室、備用倉庫、員工食堂、為主,廠房后區為車間,主要以成品倉庫為主,用于平時出入貨物儲藏等,二層為員工辦公空間。

B棟平面布置圖
ZRXCL廠房的改造似一場微創手術,通過精準的設計診斷與最細微的調整,將廠房延伸功能合理融入辦公及實驗室其中,并探討了閑置資源在面對未來企業發展時的最大可能性。
01/大廳
白色大理石花紋,與圓形內陷天花板相結合,灰藍色與乳白色相結合的條紋設計,具有雅致的紋理感,像是波紋起起伏伏,營造清新理性的初始印象。
前臺與背景墻均采用白色,通透大方,背景墻上有藍色曲線圖案,像是河流,浩浩湯湯,自有胸懷與氣魄。

02/實驗室
實驗室裝修是一項系統性工程,設計的重點在通風系統、氣體管路系統、控制系統以及排水系統。覺木在這方面有著非常豐富經驗與見解,精通于各類實驗室的整體設計與裝修。
本案中的工作臺我們采用了全鋼定制底柜,實芯理化板臺面,簡約的配色,讓原本冷冰冰的實驗室變得更為生動有活力。地面采用一體透心PVC地膠,具有較強的耐酸堿性,不易燃。頂部的通風系統使用PP風管,配合變頻風機技術,讓室內換氣能夠達到國家標準。框架結構的全鋼通風柜,鉸鏈式配重,有著較強的密封性能,可以保護我們實驗室工作人員的安全。

03/辦公室
銀灰色編織地面設計,內斂端莊,提升空間氣質。墻壁選用飽和度低的灰藍色與簡潔的乳白色撞色,新潮有趣,卻又和諧統一,有利于激發員工的創造性思維。

靠窗擺放了茶水柜,展現了公司的人文關懷,并能在其員工休息時給予放松愉悅的環境。
辦公桌椅選擇了配套的白色與黑色,墻壁上則懸掛了綠色系,紫色系與黃色系的幾何元素裝飾畫,打破了刻板嚴謹的原始辦公風格,更有一盞盞小燈懸掛其上,精致可愛。

04/商討室
總有一處空間可以供人們交流研討,橫紋磨砂玻璃推拉門隔開了外界,打造出一個靜謐靈性的環境。白色組合桌椅有著流暢有力的支架,白色掛櫥上擺放了清新綠植,使得整個空間生機勃勃。

05/會議室
會議室的紅色面板墻引人注目,更能吸引開會者的注意力,使之精神集中,提高工作研討效率,白色桌椅則在會議室空間里提供穩健的力量支點,提高團隊凝聚力。

06/辦公室
辦公室采用灰黑色調,大氣內斂。皮質沙發與矮茶幾提供舒適度的同時,更能給人親切質感,拉進交談者之間都距離,賓至如歸。
辦公桌別出心裁地采用了黑色桌面與咖色紋理結合,自帶沉穩質感。辦公桌后則是金屬色調的櫥柜,格子的設計也并不是千篇一律,高矮不一,又充滿生氣。

城市舊工業區是城市記憶的一部分,而隨著人類社會的不斷發展,迫切需要一些方法和手段對其進行規劃改造以滿足人類新的需求,ZR廠房改造既尊重舊建筑的“個性”,將其保留下來,又圍繞本身做出獨特的設計。
對于舊空間的改造,覺木一直秉承的觀點是“尊重和傳承”,并一直堅持著從一個核心策略開始,通過“策略+設計”的一體化的工作方式來達到項目的商業成功。
工業區改造應當從實際條件出發,借鑒既有模式明確改造的目的和類型,把握好變與不變的平衡,處理好歷史和現實的矛盾,生態和發展的矛盾。正如建筑大師安藤忠雄所說,“只有新舊并存的城市才是真正意義上的城市,過去與現代交融,才能看到精彩的未來。”
上海覺木裝飾設計工程有限公司一個以匠心、用匠人、造匠品的室內設計平臺藝術·人文·自然Art/Humanity/Nature忙忙碌碌的職場生活也可以在特定的環境中...
近日,上海神旺大酒店,一場以“同心五載,筑夢同行”為主題的盛會隆重舉行——上海市張家港商會二屆二次會員大會暨成立五周年慶典在此拉開帷幕。盛會啟幕:匯聚眾力,共繪...
在追求極致品質的道路上,不同領域的佼佼者總能找到共鳴。覺木公裝創始人趙劍鋒及團隊專程拜訪了位于陽澄湖畔交大安泰校友陸秉華的創業公司-鮮禾青牧,雙方圍繞圈層服務、...
在這個快節奏的時代,能夠沉下心來做事的企業值得尊敬,能夠穿越30年周期依然屹立潮頭的企業,更值得我們學習。1月19日,在上海室內裝飾協會常務副會長的特別引薦下,...
覺木原創出品 工業企業數字化行業寫字樓裝修項目新篇啟幕,共筑智慧空間INTERNATIONAL DESIGN GROUP2026年1月8日上午10:18...
覺木原創出品 芯片研發行業寫字樓辦公設計裝修項目新的起點,“芯”的征程INTERNATIONAL DESIGN GROUP吉日良辰,風和日麗。覺木公裝團...
覺木19年來專注企業空間EPC整體解決方案懂美學,更懂產業經營!2025年12月20日,上海虹橋金沙VOCO酒店內氣氛莊重而熱烈。在莊嚴的國歌聲中,上海實驗室裝...
覺木原創出品 芯片行業辦公實驗室項目時光見證,美好啟幕!12月17日10:18,覺木公裝攜手上海浦東芯片行業客戶,共同開啟1600㎡實驗室辦公項目開工儀...
上海覺木裝飾設計工程有限公司一個以匠心、用匠人、造匠品的室內設計平臺藝術·人文·自然Art/Humanity/Nature忙忙碌碌的職場生活也可以在特定的環境中...
本案是一家靜電消除設備的研發、制造、銷售及服務為一體的高新科技企業,注重辦公場所的開放性,處理了對工作空間概念的變革, 一樓用為前廳 主要于接待、引導、廠房作業...
前臺本案例設計簡約但不單調,將公司 LOGO巧妙地融入到了前廳,燈光選用簡約單個小吊燈,前廳背景色為淺色調,給人一種平和的感覺,不會顯得僵硬,讓客戶和公司員工或...